Flat 3, Caxton Court Grove Road, Burgess Hill, RH15 8GF
Guided Price
£265,000
2
Bedroom
2
Bathroom
1
Reception
About the property
Features
- Spacious two bedroom first floor apartment
- Bathroom & ensuite shower room
- Open plan kitchen,living, dining room with Juliet balcony
- Allocated parking
- Short walk of Burgess Hill mainline train station
- No onward chain
A spacious and well-presented two-bedroom first-floor apartment, ideally situated just a short walk from Burgess Hill mainline train station and the town centre — perfect for commuters, first-time buyers, or investors alike. The property features a bright open-plan living space, a modern fitted kitchen, and a generous main bedroom with its own en-suite shower room. The second bedroom offers excellent flexibility — ideal as a guest room, home office, or nursery. Allocated parking to the front and being sold with no onward chain.
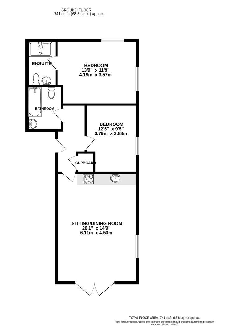
The Accomondation
Accessed via a secure communal entrance with a telephone entry system, the apartment opens into a welcoming entrance hall with space for coats and shoes, as well as a large built-in storage cupboard that conveniently houses plumbing for a washing machine. Doors lead to a spacious dual-aspect open-plan kitchen/living/dining area. The kitchen is fitted with sleek black cabinetry, wooden worktops, and integrated appliances including a fridge/freezer, dishwasher, electric hob, and oven. The adjoining living and dining space offers ample room for furnishings and opens onto a Juliet balcony—perfect for enjoying the fresh air and natural light during the summer months.
The main bedroom is bright and generously proportioned, featuring dual-aspect windows that flood the space with light and a modern en-suite shower room with a walk-in shower, WC, and wash basin. The second bedroom is also well-sized and offers flexibility for use as a guest room, home office, or dressing room. The family bathroom is fitted with a contemporary white suite including a bath with overhead shower, WC, and wash basin.
Further Attributes
Further benefits include gas central heating, one allocated parking space and access to well-maintained communal areas.
Location
Caxton Court is conveniently located centrally in Burgess Hill and offers easy access to the mainline train station and town centre, with its wide variety of facilities including a Waitrose supermarket., as well as links to the Triangle Leisure Centre and the A23 link road. Burgess Hill is surrounded by stunning countryside and picturesque villages including nearby Hassocks and Ditchling. There are very good road and for rail connections, with Burgess Hill mainline station is located approximately 2 minute walk and provides regular services to London (Victoria/London Bridge in 50 mins), Gatwick Airport and Brighton.
The Finer Details
Leasehold:
Lease: 157 years remaining
Service Charge: £127.23 per month service charge
Ground Rent: No ground rent
Local Authority: Mid Sussex District Council
Council Tax Band: C
Available Broadband Speed: Superfast
NOTE
Photography includes CGI furniture and fixtures in order to portray how individual rooms could be arranged.















