88 Middle Village, Haywards Heath, RH16 4GH
Guided Price
£240,000
2
Bedroom
2
Bathroom
0
Reception
About the property
The Apartment...
A beautifully presented, light and airy second-floor apartment, built in 2005 by David Wilson Homes, offering two generous double bedrooms, a bright sunny aspect and a highly convenient position just moments from the heart of Bolnore Village. The property is also ideally located within easy reach of Haywards Heath town centre (approximately 1 mile / 20-minute walk or 5-minute drive) and Haywards Heath mainline station (approximately 1.5 miles / 30-minute walk or 7-minute drive).
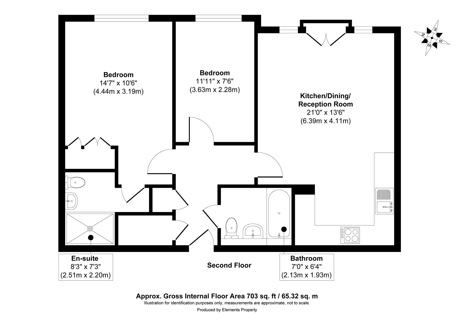
Set on the first floor, this well-proportioned apartment enjoys a peaceful outlook while remaining superbly located for village amenities. The accommodation is thoughtfully arranged and comprises a bright living/dining room featuring a Juliet balcony, allowing plenty of natural light to flood the space, alongside a modern fitted kitchen with a range of integrated appliances.
There are two double bedrooms, with the main bedroom benefiting from built-in wardrobes and an en-suite shower room, in addition to a contemporary family bathroom. The property also offers good internal storage, including a hallway cupboard and airing cupboard — a welcome feature often lacking in apartment living.
Further highlights include double glazing, a secure telephone entry system, electric radiators, and an allocated parking space.
The Location...
Bolnore Village is a popular and well-established community on the southern edge of Haywards Heath. The apartment is ideally positioned within a short walk (approximately 5 minutes) of the Village Square, which offers a convenience store and a range of everyday amenities. The nearby Woodside community centre hosts a variety of clubs, classes and social activities for all ages.
Bolnore Village Primary School, highly regarded locally, is also within easy walking distance, making this an excellent choice for families.
More extensive shopping facilities can be found in Haywards Heath town centre, located approximately 1 mile away, reachable in around 20 minutes on foot or 5 minutes by car, and offering a wide range of shops including Waitrose, Sainsbury’s and The Orchards Shopping Centre. Haywards Heath mainline station is approximately 1.5 miles away, around a 30-minute walk or 7-minute drive, and provides fast and frequent services to London Victoria and London Bridge (around 47 minutes), as well as Brighton and Gatwick Airport.
For road commuters, the A272 is close at hand, with the A23(M) easily reached at Warninglid/Bolney, providing excellent links to the wider region.
Secondary schooling is available at Warden Park Academy in Cuckfield, located just over 1 mile away, with a regular bus service running between Bolnore Village, the school and Haywards Heath station.
Further Information...
Tenure: Leasehold
Lease: 125 years from 2005
Service Charge: Approx. £1900 P/A
Service Charge Review Period: TBC
Ground Rent: £250 P/A
Ground Rent Review Period: TBC
Managing Agent: TBC
Council Tax Band: D
Local Authority: Mid Sussex District Council
We believe this information to be correct but recommend checking information personally.



















