Plot 2, The Fallows Hazeldene Lane, North Chailey, BN8 4HW
Guided Price
£775,000
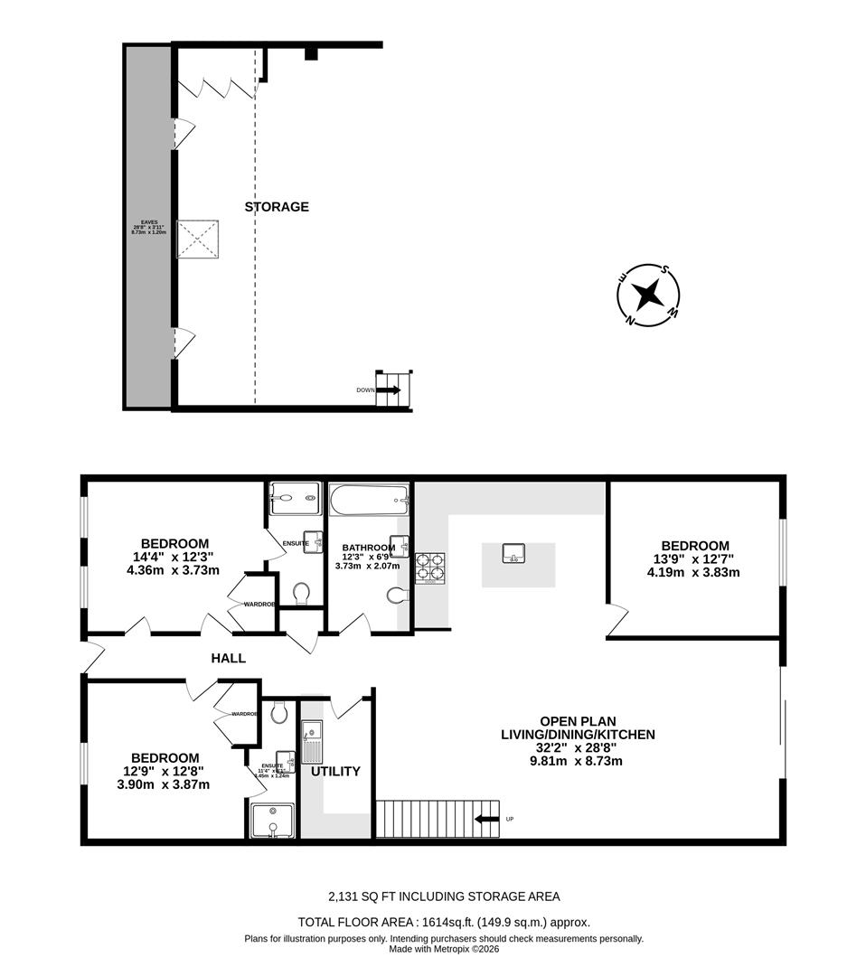
3
Bedroom
3
Bathroom
0
Reception
About the property
Features
- WATCH THE VIDEO & DOWNLOAD THE BROCHURE
- A stunning development of eight cool, contemporary eco-barn homes
- Peaceful setting in a wooded enclave at end of a quiet lane in North Chailey
- Selection of three differing layouts ranging from 2 beds, 3 beds and 4 beds
- Exceptional open plan living/dining/kitchen spaces
- Meticulous attention to detail and impressive specification throughout
- Easy access to Haywards Heath Station, Newick, Lewes, Uckfield and Burgess Hill
- 10 year new homes warranty for total peace of mind
- Immense eco credentials with optional "EPC A" eco pack upgrade available
- Sunny south west facing gardens with paved terraces | what3words: ///buzzards.vibes.marked
Welcome to The Fallows
PSPhomes Land & New Homes are proud to introduce The Fallows - a small collection of just eight (four of each style) newly built eco-barn homes, set within a gently wooded, semi-rural landscape. Inspired by contemporary agricultural architecture, the buildings take the familiar barn form and reinterpret it through a refined, modern lens, combining strong vertical lines, dark timber cladding and expansive glazing to striking effect.
Environmental Excellence
Environmental performance has been integral to the design from the outset. High levels of insulation, underfloor heating throughout and individual air source heat pumps ensure excellent energy efficiency and low running costs, while EV charging is provided to every home. An optional EPC A upgrade, incorporating roof-mounted solar panels and battery storage, allows owners to move towards near-zero energy living.
Let Me Entertain You
Internally, the houses are defined by volume and light. Vaulted ceilings run throughout, creating a sense of openness and generosity, while slim-profile aluminium bifold doors draw the gardens into the living spaces. Open-plan kitchen, dining and sitting areas form the heart of each home and are designed for modern life and easy entertaining, with southerly aspects and green views from every window.
The kitchens are treated as architectural statements rather than ancillary spaces, paired with Silestone quartz worktops and a full suite of integrated Samsung appliances. Selected homes feature Rangemaster electric range cookers as a focal point, while all properties benefit from dedicated utility rooms with integrated laundry appliances.
Bath & Bed
Bathrooms and en-suites are finished with a restrained, contemporary palette, featuring Hansgrohe fittings and Porcelanosa tiling throughout. Freestanding baths are introduced in the principal units, reinforcing a sense of considered luxury. Oak internal doors, antique brass ironmongery and natural oak-toned LVT flooring bring warmth and texture to the interiors
Outside Oasis
Externally, private gardens are arranged to make the most of the setting, with stone-paved terraces, lawned areas edged with oak sleepers and carefully planted boundaries to maintain privacy while preserving the woodland outlook. Each home has parking, alongside discreet bin and cycle storage.
Together, these eco-barn homes offer a rare balance of architectural clarity, environmental responsibility and refined internal design, set within a peaceful landscape yet conceived for contemporary living.
Out & About
The Fallows is nestled in a peaceful setting at the bottom of Hazeldene Lane in the popular Sussex village of North Chailey. Location wise, the historic county town of Lewes is within easy reach, known for its independent shops, cafés, antiques and cultural life, while Haywards Heath provides fast mainline rail connections to London and Brighton. Uckfield and Burgess Hill offer further retail, schooling and leisure facilities, making the location both well connected and practical. Gatwick Airport is readily accessible for both domestic and international travel.
Chailey Common lies close by, offering wide heathland, woodland paths and far-reaching views across the Sussex landscape. The area is particularly well suited to those who value an outdoor lifestyle, with a network of footpaths and bridleways weaving through the nearby countryside.
The nearby Bluebell Railway adds a distinctive local character, running through the surrounding countryside and reinforcing the area’s heritage appeal. Newick village, a short drive away, provides a broader range of amenities including independent shops, a bakery, café, post office, pharmacy, doctors’ surgery and well-regarded local pubs. For dining, The Griffin at Fletching is a notable destination, set within one of Sussex’s most picturesque villages.
The area is well regarded for schooling, with Newick Primary School, Chailey Secondary School and Chailey Heritage School all close by. Cumnor House, a highly regarded independent preparatory school, is also within easy reach
Together, North Chailey offers a considered balance of rural calm and everyday convenience, with easy access to neighbouring towns, transport links and some of the county’s most attractive countryside.
The Specifics
Tenure: Freehold
Local Authority: Lewes District Council
Council Tax Band: TBC
New Homes Warranty: Yes - 10 years "Advantage"
Services: Mains
Management Company: Will be handed to residents upon the last sale
Reservation Fee: £2,500 for plots 3,4,5 & 6; £5,000 for Plots 1,2,7 & 8.
NB
Please see brochure for full specification. Photos are not plot specific and intended to showcase the spec. Final spec and finish subject to change.






























